Access Control

Keeping track of who comes, and who goes, automatically.

Access Control Systems
Access Management Solutions

Access control systems are smarter security that allows authorized employees and visitors to enter certain areas of your business, while keeping unauthorized individuals out. Not only are Bri-Tech integrated systems highly resilient and always alert, they are also easy-to-use and easily accessible. Bri-Tech's access control systems provide the security you need, no matter what business you're in.

Bri-Tech offers:

  • Biometric systems
  • Swipe key cards for specific buildings and areas
  • Security systems for large facilities and multiple sites
  • Keypads
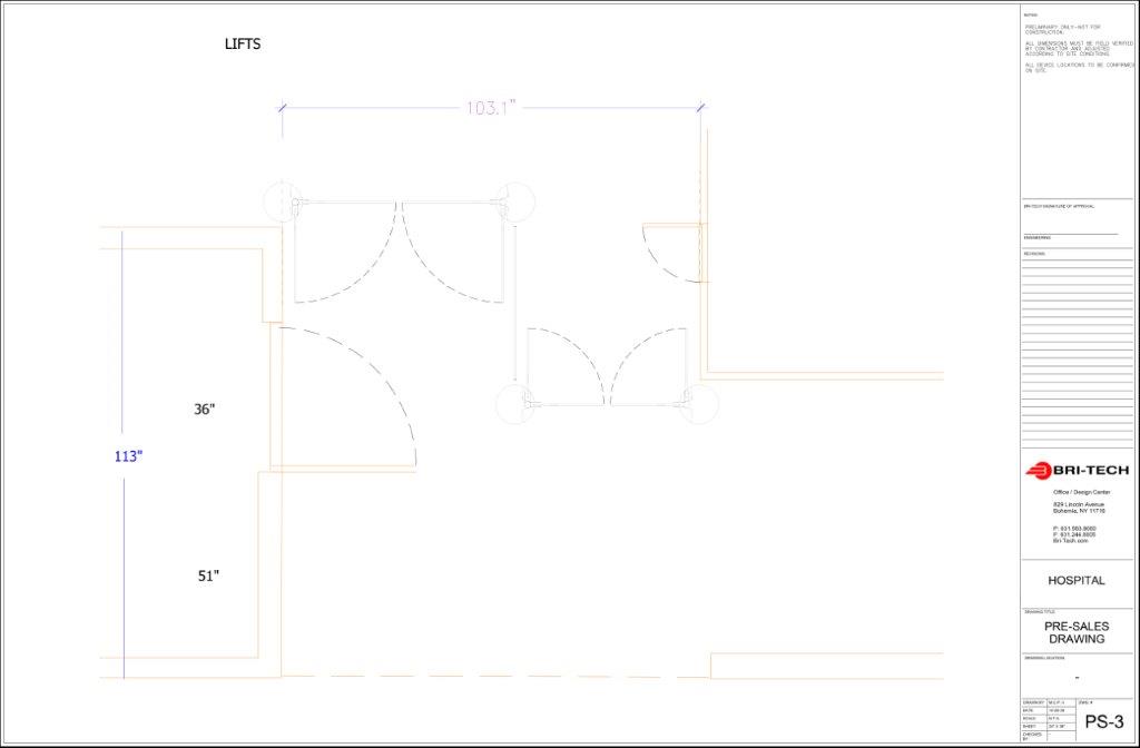
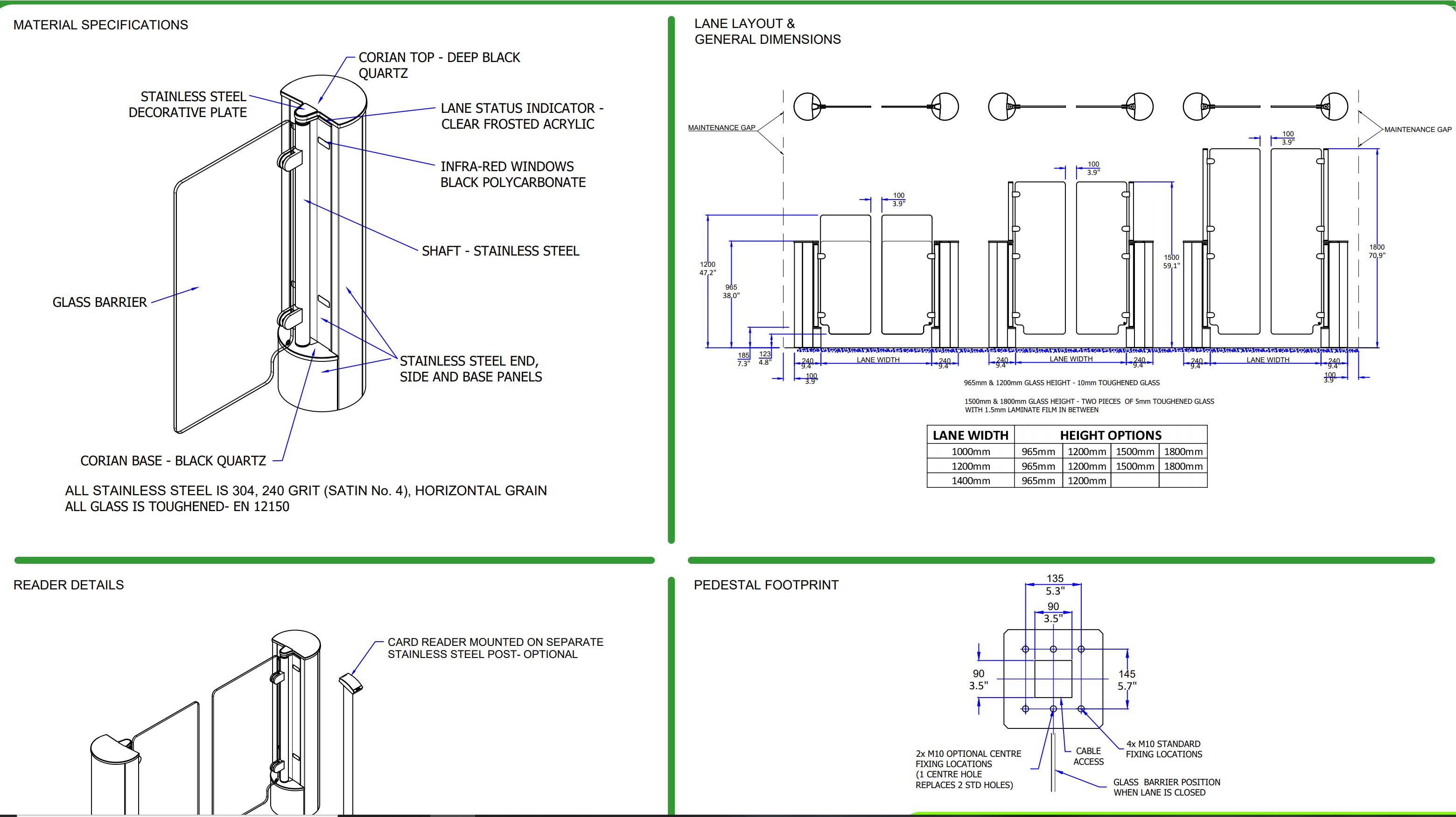
  • Turnstiles
Hartmann Controls
Anywhere, Anytime IP Access Control

Hartman Controls prides itself on delivering ectrenely advabnced hardware and cutting edge software. Their porducts have been installed all over, including military, educational, commercial, institutional, health care and property mamagement. They specialize in controlling doors, elevators, gates as well as monotoring other devices. Bri-Tech uses Hartmann to provide "deployed on-site" istalls as these are thier most robust and manageable options.

Access panels options:

  • Combined or seperate proximity readers and combination keypad
  • Bluetooth and Smartcard NFC readers
  • Proximity key tag fob, cards, and adhesive disk credentials

Mobile Support:

  • Supports mobile apps on Android and iOS
  • Resposive web interface to manage systems from any browser
  • View door transaction history
  • Unlock doors in 3 taps

OSDP Solutions:

  • Offering the the newest and most secure technology to provide peace of mind
  • OSDP solutions and AES-256 encryption to provide ease of mind
  • Chain together multiple cahins on the same communication bus
Entry Systems

As acts of mass violance continue to rise, ensuring the safety of pantron and employees is more important than ever. A 2022 report of operation leaders in a variety if industries saw an increase of 28% in physical security incidents. Factors like this contribute to the increase in buildings and businesses with security measures. Bri-Tech provides a variety of solutions like door-by-door, employee-by-employee, and turnstyles so we will have the right fit for your business.

Catalog Sheets: